039

EQUUS

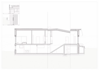
DRAWINGS

A HOUSE FOR AN EQUESTRIAN


Program:     SINGLE-FAMILY HOUSE


YEAR:        2013 - 2014

TYPE:        PRELIMINARY DESIGN TO EXECUTION

CLIENT:      PRIVATE

LOCATION:    ALTISHOFEN, LU


DRAWINGS:    GROUND FLOOR

             UPPER FLOOR

             ROOF VIEW

             SECTIONS

             ELEVATIONS


CONTENT:     © ILAI



RENDERINGS